Pleasant Valley “Kennebunk” Manufactured Home
(Hillcrest 55+ Community)
Listed at: 311 Hillcrest Avenue
*Please note that all photos are used as templates and are not exact
Pleasant Valley “Kennebunk” Manufactured Home
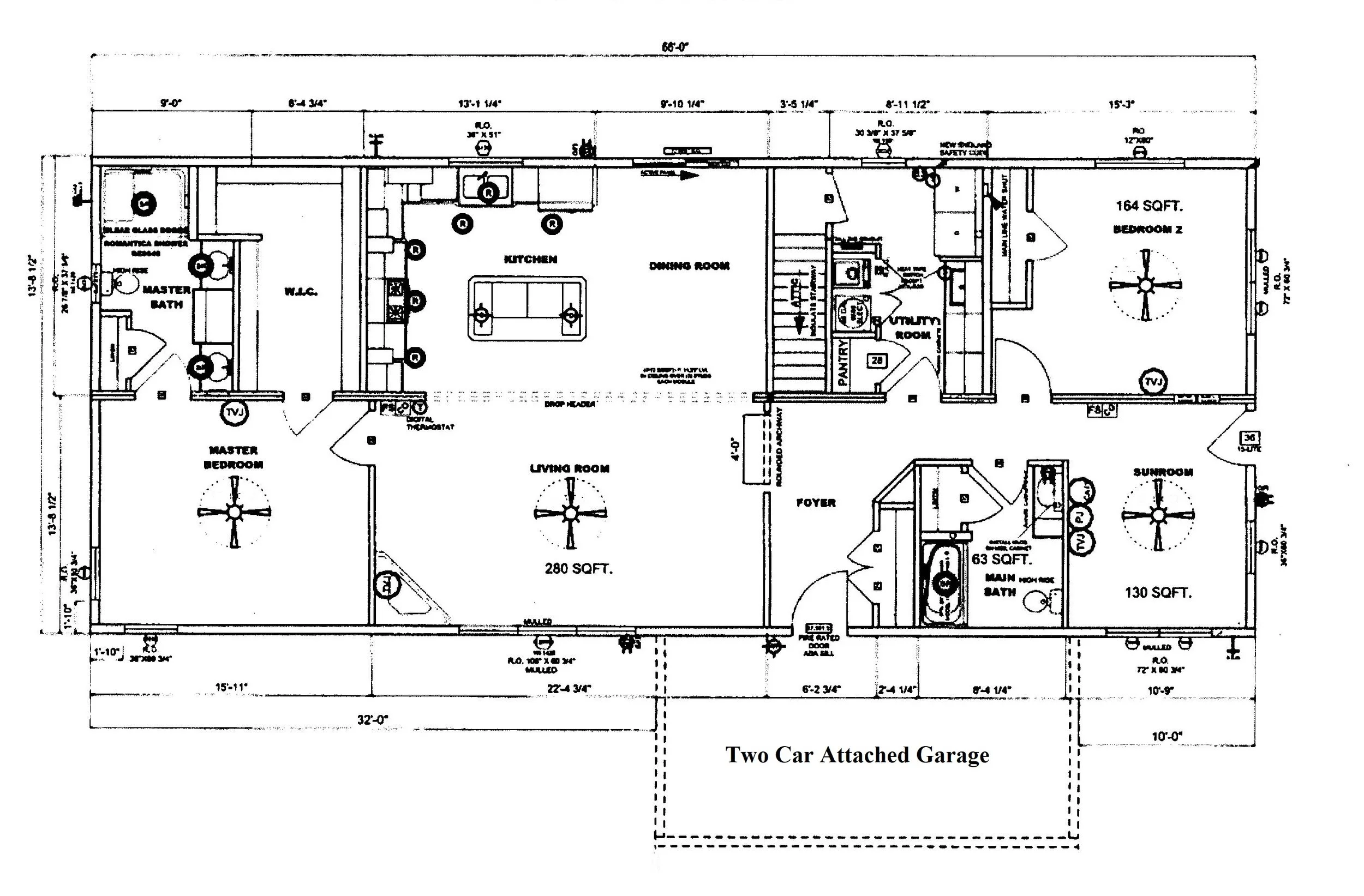
1,848 Sq. Ft., 2 Bedrooms, 2 Baths, Sunroom TWO Car Attached Garage (28’x66′)
TWO-Car Attached Garage
AMAZING location!!!!
Front Entry Deck
Corner Gas Fireplace
Chef’s Kitchen with Large Center Island
Stainless Steel Kitchen Appliances
White Cabinets (Blue Island Cabinets) in Kitchen; White in Baths
Hardwood Flooring Installed
Step In Shower in Bath
Walk Up Attic Storage
Separate Laundry Room with Deep Sink and Base Cabinet Storage
Foyer Entrance with Double Coat Closet


































