Next Built Zero Energy Ready Home
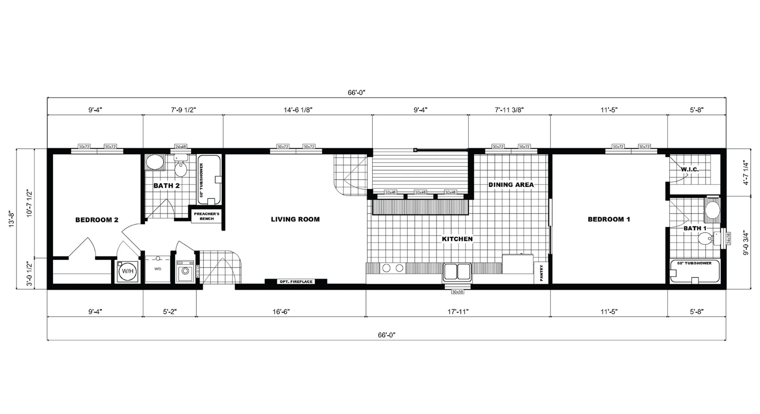
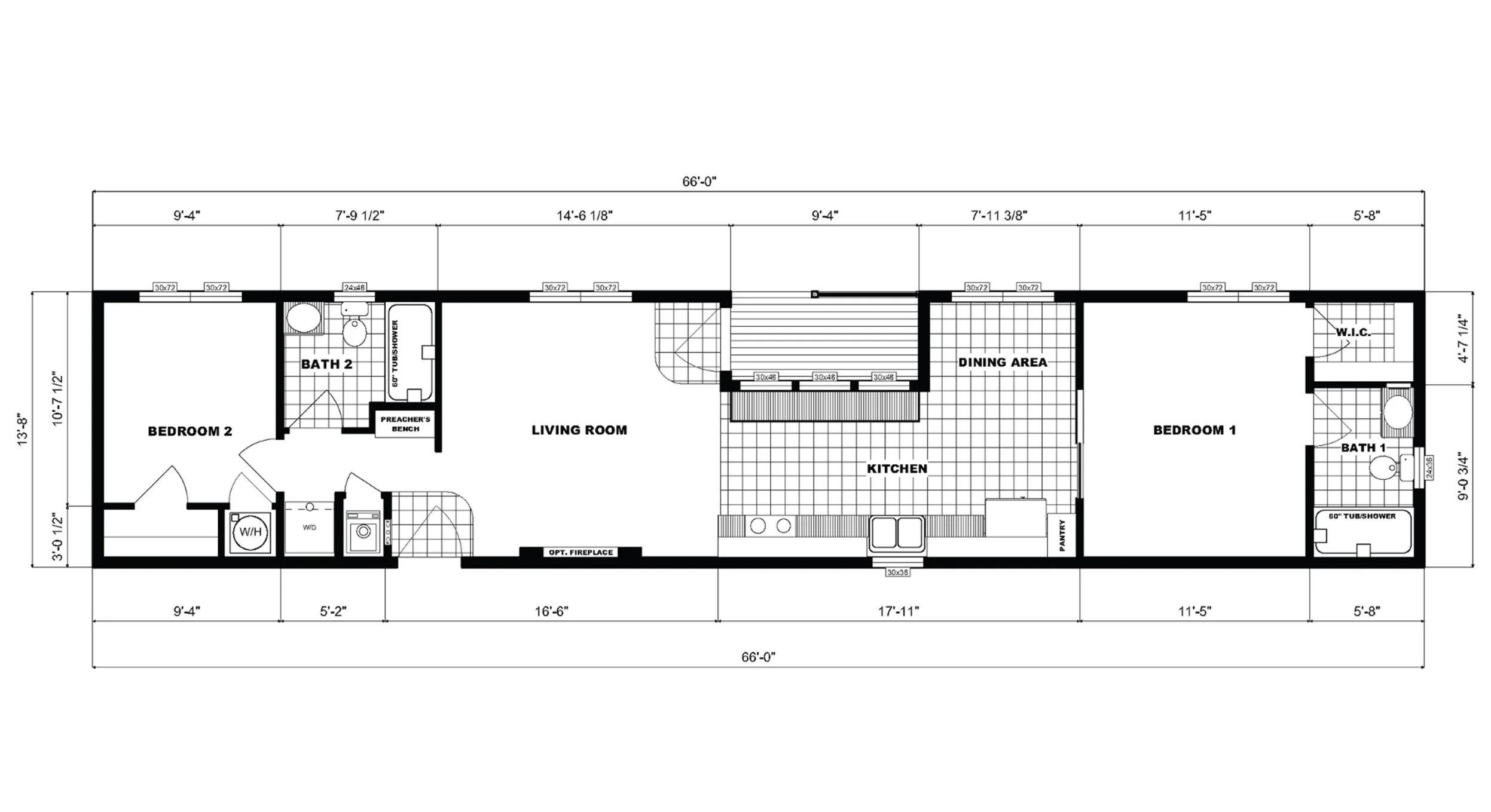
Pine Grove ZK-1100
14’x66’, 2 BR/2 BA, 902 sq. ft.
Next-Built homes are designed and built to minimize power consumption. We have utilized advanced framing techniques that reduce studs in corners without compromising structural integrity, added foam insulation to structural headers, and enhanced our already-strong floor, wall, and roof insulation to create a tight and well-insulated thermal envelope. Other improvements include LED lighting, energy-efficient kitchen appliances, a hybrid heat pump water heater and a high-efficiency gas furnace.
Next-Built homes are also Solar Ready, and solar panels can be installed on the home by the homeowner (if and when they are ready) to take advantage of a renewable source of power than can substantially offset ever-increasing electric bills. When you add together the factory installation of these energy-saving improvements and the capability of solar, a homeowner can save an average of 40-50% on their electric bill.

